HOTEL SOLAR DO ROSÁRIO - PAVILHÃO DA PISCINA

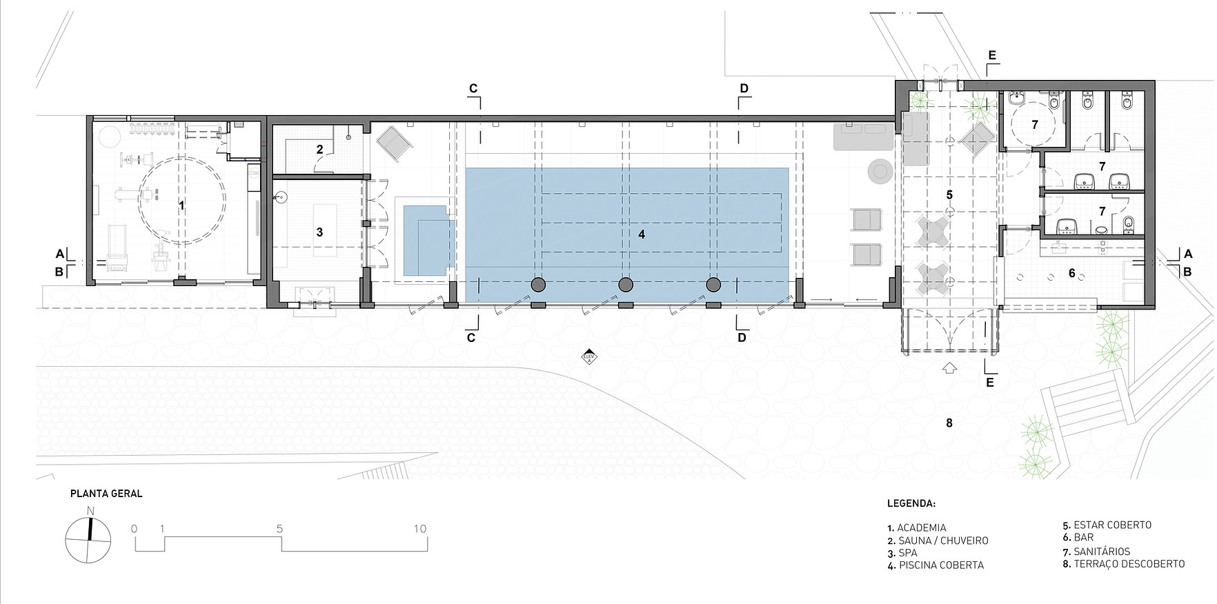
Pavilhão da Piscina
Hotel Solar do Rosário
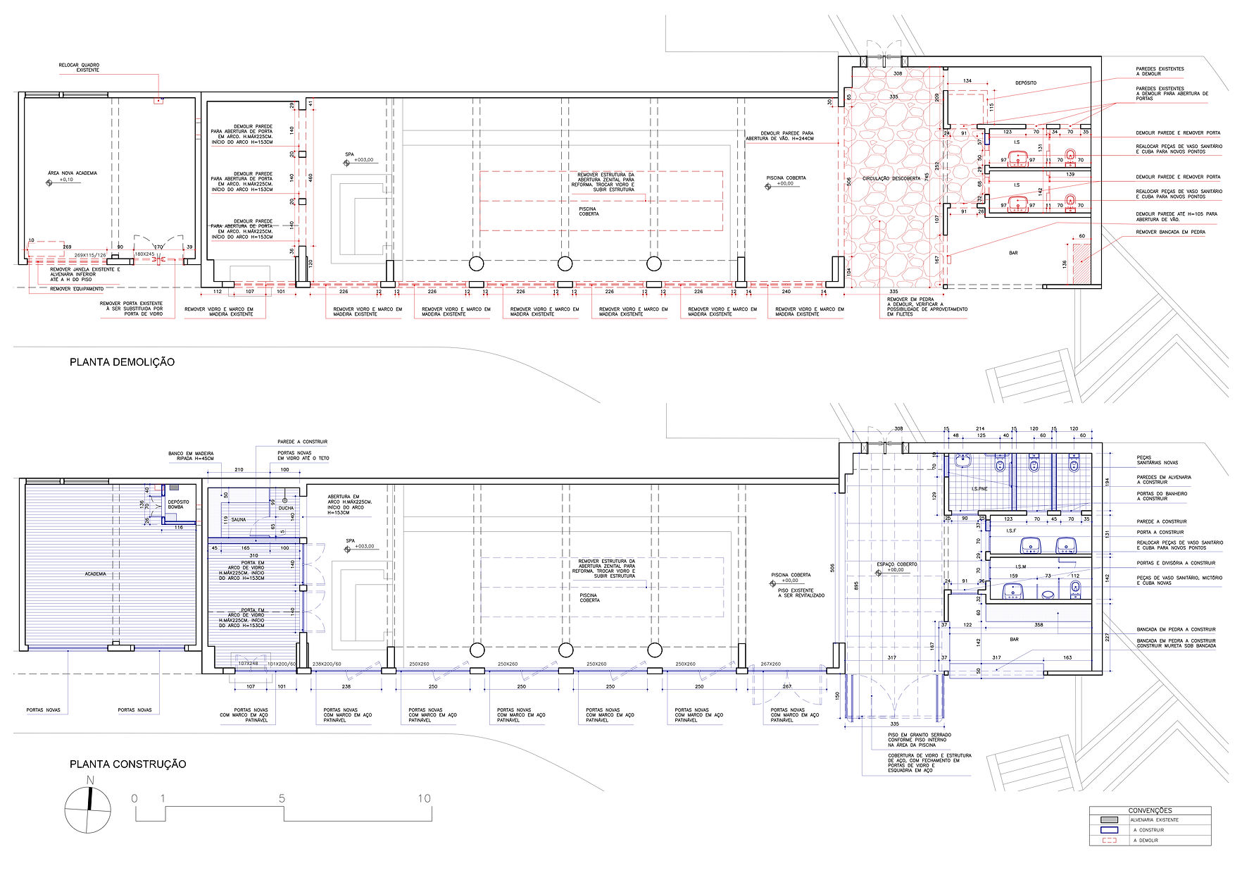
O pavilhão da piscina é uma das diversas intervenções de reformas arquitetônicas desenvolvidas para o Hotel Solar do Rosário, localizado em Ouro Preto, cidade histórica considerada Patrimônio Mundial pela UNESCO. O principal objetivo dos clientes para esse projeto era proporcionar a integração entre o volume da piscina coberta e o volume do bar e banheiros, além da transformação completa do pavilhão e da alteração de uma área de depósito para um spa e sauna.
O primeiro gesto do projeto foi a ocupação entre os dois volumes existentes, com a demolição da parede da piscina e a criação de um pergolado em pórtico com estrutura metálica em aço corten, coberto por vidro. Esta estrutura avança entre os volumes, criando continuidade e ligação entre eles. Ela não só conecta os volumes de forma leve, porém marcante, como também indica o novo acesso à piscina, melhorando a iluminação natural do espaço e criando uma área de estar coberta para os hóspedes enquanto utilizam o bar e a piscina.
O projeto faz uso da esteatita (pedra-sabão) como sua principal materialidade em forma de revestimento, um material que remete ao trabalho artesanal, com um aspecto verde acinzentado com acabamento escovado natural. A pedra-sabão é abundante nesta região de Minas Gerais e amplamente utilizada pela população local na confecção de peças artesanais, sendo de grande importância histórica para a cidade. Além disso, foram empregados aço corten para o pergolado e caixilhos novos, pedra quartzito Ouro Preto, madeira e ladrilhos hidráulicos, que juntos contribuem para a composição do todo.
A fachada do pavilhão recebeu um novo tratamento com caixilhos em aço corten, substituindo os antigos que possuíam molduras em madeira que eram uma reprodução e não peças produzidas na época. Também foi aplicado um novo revestimento externo, e a estrutura e vidro da abertura zenital da piscina foram substituídos para melhorar a iluminação natural no local. A cimalha e o beiral foram mantidos a fim de preservar a conexão com as demais construções do hotel e a história do próprio edifício.
Logo à frente da fachada do pavilhão, existe uma extensa área externa com conexão visual com a Igreja de Nossa Senhora do Rosário, uma importante igreja barroca colonial. Dessa igreja, utilizamos como referência a frontaria com três portas em arco principais do frontispício, traduzidas no projeto como aberturas com três portas em arco para os espaços do spa e sauna.
Ademais, o projeto buscou atender ao programa solicitado e integrar os espaços com referências e materiais locais, valorizando a cultura local e reverenciando-a de forma contemporânea.
Área: 265.00 m²
Data: 2021
Obra: 2023/24
Local: Ouro Preto/MG
Status: Construído
Colaboração: Sara Machado
Fotografias: Henrique Queiroga






















